ZCZG高溫導熱油電磁閥
一、ZCZH高溫高壓電磁閥 產品概述
ZCZH高溫高壓電磁閥是先導直動型的電磁閥,其通用介質范圍較廣,高溫電磁閥可分別使用于水、輕油、重油、非腐蝕性氣體及蒸汽等流體,如電站抽氣管道疏水系統和蒸發器的排氣系統中,高溫電磁閥主要是對管道中的介質進行雙位自動調節和遠程控制。
|
|
|---|---|
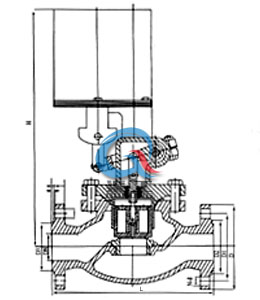
| ZCZH高溫高壓電磁閥 | ZCZH高溫高壓電磁閥(結構圖) |
二、ZCZH高溫高壓電磁閥 結構特點
1、 耐受高溫:采用金屬硬密封,增加了使用溫度。介質流體溫度可達425℃。
2、 耐受磨損:選材合理,閥杯和導向套間利用流體的潤滑作用,減少磨損。
3、 采用杠桿原理可使線圈和閥體隔開。
三、ZCZH高溫高壓電磁閥 結構原理
ZCZH高溫高壓電磁閥電磁鐵通電時,連桿被上提,帶動轉軸轉動,副閥打開。由于副閥被開啟,主閥閥杯上部的壓力流體被排出,因此主閥閥杯下部的壓力比上部高,這樣下部的壓力將主閥閥杯向上推開。主閥被打開后,上下壓力相等,閥杯在電磁力、上下壓力作用下,置于平衡狀態,閥門開通。斷電時在銜鐵自重及返回彈簧作用下,關下副閥,副閥關閉后,隨之主閥閥杯上部的壓力升高而將主閥閥杯壓下,達到斷流密封作用,閥門關閉。
四、ZCZH高溫高壓電磁閥 主要技術參數
| 介質溫度℃ |
ZCZG |
≤250 |
|||||||
|
ZCZH |
≤400 |
||||||||
| 公稱壓力(MPa) |
ZCZG |
2.5 |
|||||||
|
ZCZH |
4.0 |
||||||||
| 工作壓差(MPa) |
ZCZG |
0.1-2.5 |
|||||||
|
ZCZH |
0.1-4.0 |
||||||||
| 公稱通徑(MPa) |
15 |
20 |
25 |
32 |
40 |
50 |
65 |
80 |
100 |
| 功耗 |
130VA |
480VA |
|||||||
| 電源電壓 |
AC220V DC 24V其余規格可作特殊訂貨 |
||||||||
| 額定流量系數(KV) |
3.8 |
7.4 |
10.3 |
18.8 |
25.7 |
41 |
58 |
85 |
154 |
| 泄漏量(ml/min) |
按JB/T7352-94·F規定 |
||||||||
五、ZCZH高溫高壓電磁閥 主要外形尺寸
| DN | L | H | D | D1 | D2 | D3 | b | f1 | f | n-d |
|
10 |
160 |
298 |
90 |
60 |
34 |
41 |
16 |
4 |
2 |
4-?14 |
|
15 |
160 |
298 |
95 |
65 |
39 |
45 |
16 |
4 |
2 |
4-?14 |
|
20 |
200 |
304 |
105 |
75 |
50 |
55 |
16 |
4 |
2 |
4-?14 |
|
25 |
200 |
304 |
115 |
85 |
57 |
65 |
16 |
4 |
2 |
4-?14 |
|
32 |
200 |
314 |
140 |
100 |
65 |
78 |
18 |
4 |
2 |
4-?18 |
|
40 |
260 |
460 |
150 |
110 |
75 |
85 |
18 |
4 |
3 |
4-?18 |
|
50 |
300 |
460 |
165 |
125 |
87 |
100 |
20 |
4 |
3 |
4-?18 |
|
65 |
290 |
433 |
185 |
145 |
109 |
120 |
22 |
4 |
3 |
8-?18 |
|
80 |
310 |
433 |
200 |
160 |
120 |
135 |
22 |
4 |
3 |
8-?18 |
|
100 |
350 |
461 |
235 |
190 |
149 |
160 |
24 |
4.5 |
3 |
8-?22 |
六、ZCZH高溫高壓電磁閥 安裝須知
1、安裝時電磁閥線圈向上,并保持垂直位置,電磁閥上箭頭或標記應與管道流向相同,不得安裝在有濺水或漏水的地方。
2、電磁閥的工作介質應清潔無顆粒雜質,電磁閥內件表面上的污物及過濾器,需定期清潔干凈。
3、在電磁閥發生故障時,為了及時隔開電磁閥,并使系統正常運行,可以安裝旁路裝置。
4、在管路系統中,安裝在支路上的電磁閥通徑應小于主管道閥門的通徑。
5、安裝電磁閥前,管道需要清洗干凈。建議在閥前安裝過濾器,蒸汽管道安裝疏水閥。
6、不能將閥安裝在管道的低凹處,以免因蒸汽冷凝水、雜質等沉淀在閥內而防礙動作。
7、普通型不能在危險場合使用。
8、在管路剛性不足情況下,建議把閥前管道用支架固定,以免電磁閥工作時引起振動。
9、在安裝前,要注意看清產品標牌,認真閱讀使用說明書,判斷產品是否符合使用條件。
10、電磁閥前后管道上需安裝壓力表,以便觀察管道壓力。


滬公網安備31012002006630號
